Virtuvė ilgainiui transformavosi iš paprastos maisto gaminimo vietos į svarbią interjero dalį, todėl būsto savininkai skiria daug dėmesio funkcionalių, ergonomiškų ir stilingų virtuvės sprendimų paieškai. Integruojama virtuvės technika leidžia išlaikyti vientisą dizainą ir taupyti vietą. Vienas esminių šios technikos elementų - gartraukis, kurio efektyvumas ir saugumas priklauso nuo tinkamo montavimo aukščio. Šiame straipsnyje aptarsime, kokiame aukštyje nuo viryklės turėtų būti montuojamas gartraukis, kad jis atliktų savo funkciją ir užtikrintų saugumą.
Virtuvės projektavimas ir integruojama technika
Įmontuojama virtuvės technika turėtų būti parenkama dar virtuvės projektavimo etape, nes tai lemia tam tikras technines sąlygas. Projektuojant virtuvę ir baldus, svarbu ne tik suplanuoti didžiųjų prietaisų, tokių kaip šaldytuvas ar viryklė, integravimą, bet ir numatyti vietą smulkiai technikai. Toks sprendimas leidžia išlaikyti virtuvės dizaino vientisumą ir estetiką. Renkantis integruojamą buitinę techniką, būtina įvertinti šeimos poreikius ir atitinkamai parinkti technikos parametrus bei matmenis. Šie matmenys yra būtini projektuojant virtuvės baldus ir atskiras jos dalis.
Virtuvės projektavimas neatsiejamai susijęs su pagrindinių komunikacijų - vandens, kanalizacijos, elektros įvadų - vieta. Interjero projektavimo stadijoje jau turėtų būti žinomas virtuvės dizainas ir numatyta, kokia integruojama technika bus naudojama. Vertingiausia patirtimi dalijasi profesionalūs virtuvės baldų gamintojai, kurie žino smulkmenas, galinčias tapti kliūtimi net ir patyrusiems dizaineriams.

Dažniausios virtuvės planavimo klaidos
Projektuojant baldų ir technikos išdėstymą, dažnai daromos klaidos, kurios išryškėja eksploatacijos metu ir trukdo patogiai naudotis virtuve. Svarbu žinoti, kad visa įmontuojama buitinė technika, nepriklausomai nuo gamintojo, yra standartinių matmenų, todėl ir spintelių išmatavimai turėtų būti parenkami atitinkamai. Pakabinamų spintelių aukštis gali būti įvairus, tačiau jei jos aukštesnės už įmontuojamą įrangą, racionalu numatyti viršutinę lentyną.
Štai kelios dažnos klaidos:
- Trūksta rozečių.
- Prie indaplovės sudėtinga atvesti vandens įleidimo ir išleidimo žarnas.
- Dujų stovo vamzdis yra tiesiai prie sienos už viryklės vietos.
- Vėdinimo šachta yra toli nuo gartraukio.
- Šaldytuvo ir mikrobangų krosnelės nerekomenduojama integruoti į aklinas spinteles iki lubų.
- Plautuvė ir kaitlentė negali būti viena šalia kitos; tarp jų turi būti bent 50-80 cm atstumas.
- Per žemai pakabintos sieninės spintelės.
Įmontuojamos virtuvės technikos parinkimas
Integruota technika yra brangesnė nei laisvai pastatoma, tačiau ji leidžia sutaupyti brangius virtuvės centimetrus ir palengvina patalpos priežiūrą. Todėl verta integruoti viską, ką tik įmanoma. Į minimalų integruojamos technikos paketą įeina viryklė, šaldytuvas ir orkaitė. Integruojama indaplovė tampa būtina virtuvės įranga, o dujinė ar elektrinė viryklė sunkiai įsivaizduojama be įmontuojamo ištraukėjo. Labai patogu virtuvėje turėti integruojamą mikrobangų krosnelę, o prabangesnėse virtuvėse galima įmontuoti kavavirę ar blenderį.
Renkantis virtuvės prietaisus, geriausia teikti pirmenybę specializuotų gamintojų, kurie orientuojasi tik į virtuvės techniką, gaminiams. Tokie gamintojai siūlo pažangiausius sprendimus ir technologinę patikimumą. Nors jų buitinė technika nėra pigiausia, taupyti, ypač integruojamai technikai, tikrai neverta. Vienas tokių gamintojų - „Franke“, kuris daugiau nei 100 metų specializuojasi virtuvės įrangos gamyboje, sėkmingai derindamas tvarias medžiagas, inovatyvius inžinerinius sprendimus ir dizainą. Šis gamintojas orientuojasi į vidutinį kainų lygį ir siūlo ne tik atskirus prietaisus, bet ir virtuvės įrangos dizaino linijas, leidžiančias sukomplektuoti visą virtuvės įrangą palaipsniui, išvengiant chaoso ir sukuriant dizaino šedevrą.

Įmontuojamas gartraukis: būtina įrangos dalis
Gartraukis yra būtina virtuvės įrangos dalis virš viryklės, ypač jei patalpoje įrengtas priverstinis vėdinimas. Jis apsaugo virtuvės spinteles nuo riebaus sluoksnio ir palaiko švarų orą. Gartraukis turi būti sujungtas su oro ištraukimu, o senesniuose daugiabučiuose jis dažniausiai pajungiamas prie virtuvės ventiliacijos angos. Jei tai nauja sistema, ištraukimas pravedamas atskirai nuo rekuperatoriaus. Siekiant sutaupyti vietos spintelėje, reikia stengtis kuo mažiau ortakių pravedinėti joje.
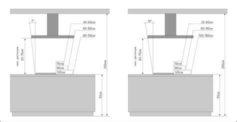
Standartinis gartraukio aukštis virš viryklės
Rekomenduojamas gartraukio montavimo aukštis virš elektrinės viryklės yra 65-75 centimetrai, o virš dujinės viryklės - 70-80 centimetrų. Tai užtikrina optimalų oro srautą ir saugumą. Svarbu atkreipti dėmesį, kad minimalus atstumas tarp gartraukio ir viryklės negali būti mažesnis nei 45 cm. Jei gartraukis sumontuotas per žemai, riebalai jame gali perkaisti ir tapti gaisro židiniu. Jei virtuvėje aukštos lubos ar atvira erdvė, tinka lubinis gartraukis, kurio optimali vieta - 140-145 cm virš viryklės. Per aukštai pakabintas prietaisas nebespėja sulaikyti dūmų.

Gartraukio galingumo apskaičiavimas
Svarbu pasirinkti pakankamo galingumo garų surinktuvą, atsižvelgiant į virtuvės dydį ir gaminimo intensyvumą. Galingumas apskaičiuojamas pagal formulę: virtuvės ilgis x plotis x aukštis x 10 = reikalingas galingumas (m³/h). Jei virtuvė sujungta su svetaine, rekomenduojama rinktis galingesnį garų surinktuvą (nuo 500 iki 1000 m³/h). Reikėtų rinktis prietaisą, kuris ištraukia orą į išorę, nes jis yra galingesnis. Pavyzdžiui, 5 m x 3 m x 2,8 m virtuvės tūris yra 42 m³, todėl ištraukimo galingumas turėtų būti 420 m³/h (42 m³ x 10).
Apskaičiuojant realų oro ištraukimo galingumą montavimo vietoje, reikia atsižvelgti į oro pasipriešinimą vamzdžiuose. Kiekvienas vamzdžio metras ar 90 laipsnių posūkis sumažina oro ištraukimą apie 20-50 m³/h. Norint išvengti galingumo sumažėjimo, svarbu nenaudoti per mažo skersmens vamzdžių.
Gartraukio triukšmingumas
Renkantis gartraukį, svarbu atkreipti dėmesį į jo keliamą triukšmą. Jei yra galimybė, verta rinktis prietaisą, kurio variklio bloką galima montuoti ir izoliuoti už virtuvės sienos. Jei gartraukis skleidžia didelį triukšmą, rekomenduojama naudoti didžiausio rekomenduojamo skersmens vamzdžius, specialius triukšmą izoliuojančius vamzdžius arba aplink juos dėti izoliacinę medžiagą. Jei gartraukis nėra labai galingas, rekomenduojamas jo triukšmo lygis - iki 40 dB.
Gartraukio filtrai
Gartraukio filtrai yra svarbiausias elementas, leidžiantis palaikyti švarų orą virtuvėje. Nerūdijančiojo plieno filtrai, skirti riebalams ir kvapams sugerti, gali būti plaunami indaplovėje. Anglies filtrai sugeria maisto kvapus ir smulkesnes daleles, tačiau juos reikia keisti kas 1-3 metus, priklausomai nuo gaminimo intensyvumo. Aliumininiai riebalų filtrai turėtų būti plaunami bent kas du ar tris mėnesius, nes nevalyti filtrai sumažina ištraukimo galingumą ir gali sukelti gaisro pavojų. Aktyvintos anglies filtrai turėtų būti keičiami arba plaunami kas tris mėnesius.

Montavimo ypatumai
Prieš perkant gartraukį, reikia išmatuoti viryklės plotą ir įsitikinti, kad kiti virtuvės baldai netrukdys jo įmontuoti. Gartraukis jokiu būdu negali būti siauresnis nei viryklės plotas. Dažniausiai gartraukio gaubtai būna 50, 60 arba 90 centimetrų pločio, atsižvelgiant į standartinio dydžio virykles. Kamino tipo gartraukiams reikia palikti kabelių išėjimus maždaug 180-200 cm nuo grindų. Gartraukio apatinis taškas turėtų būti virš galvos, kad netrukdytų judėti. Rekomenduojama visas rozetes „paslėpti“ gartraukio zonoje, 100-150 mm šone nuo gartraukio vamzdžio, aukščiau pačio gartraukio arba virš spintelių.
Virtuvės elektros instaliacijos ypatumai
Prieš atliekant apdailą virtuvėje, rekomenduojama pasikonsultuoti su specialistu dėl įvadų vietos. Orkaitėms ir šaldytuvams tinka paprastos rozetės su įžeminimu grindjuostės aukštyje. Kaitlentėms reikalinga rozetė arba paskirstymo dėžutė grindjuostės aukštyje arba už šalia esančios spintelės. Už indaplovės negali būti jokių rozečių ar santechninių mazgų; rozetė gali būti už šalia esančios spintelės grindjuostės aukštyje. Mikrobangų krosnelės jungiamos į paprastas rozetes. Jei šaldytuvas turi ledukų generatorių, reikalingas šalto vandens įvadas.
Pagal saugos reikalavimus, rozetės turėtų būti nutolusios nuo vandens šaltinių mažiausiai per 0,5 m. Naudojantiems dujas, bet koks elektrinis sujungimas (rozetė, jungtukas) privalo būti ne arčiau 50 cm nuo dujų čiaupo.
Virtuvės baldų standartiniai matmenys
Kuriant virtuvės projektą, verta orientuotis į standartinius matmenis: pastatomos spintelės būna 60 cm gylio ir 82-87 cm aukščio; spintų plotis svyruoja nuo 15 iki 90 cm. Pakabinamos spintelės dažniausiai gaminamos 70-100 cm aukščio ir 30-35 cm gylio. Standartinis parduodamų prietaisų plotis yra 60 cm (šaldytuvų, kaitlenčių, skalbiamųjų mašinų, gartraukių, orkaičių), indaplovių - nuo 45 iki 60 cm. Stalviršio aukštis svyruoja nuo 855 mm iki 1020 mm, o tarpas tarp stalviršio ir pakabinamų spintelių - 450-550 mm.
Dizaino aspektai
Garų surinktuvas turi derėti su bendru virtuvės stiliumi, todėl svarbu atidžiai apgalvoti virtuvės baldų ir gartraukio dizaino dermę. Šiuolaikinėje virtuvėje gartraukis yra ne tik technikos prietaisas, bet ir svarbi interjero dalis, užtikrinanti komfortą ir švarą. Klasikiniai variantai apima sieninius, įleidžiamus į spintelę, lubinius, salos tipo, kampinius ir stalviršio gartraukius. Svarbu atsižvelgti ne tik į dizainą ir dydį, bet ir į gartraukio triukšmo lygį. Modeliai, skleidžiantys mažesnį nei 60 decibelų triukšmą, laikomi labai tyliais.
26 fantastiškos gartraukio idėjos jūsų naujos statybos namui ar virtuvės remontui
Geriausias gartraukis yra tas, kuris atitinka jūsų virtuvės išplanavimą, dizainą ir kaitlentės dydį. Renkantis gartraukį, svarbu atsižvelgti į jo vietą virtuvėje, dydį (atitinkantį kaitlentės plotį), triukšmo lygį ir papildomas funkcijas, tokias kaip automatinis ventiliatoriaus greičio reguliavimas ar valdymas balsu. Tinkamai parinktas ir sumontuotas gartraukis užtikrina saugumą, švarą ir komfortą virtuvėje.
tags: #matmenys #virs #gartraukio
